加息下的黑马资产,工业地产不容错过
每日地产ozreal
2022-08-17 20:42
目前全球范围内持续的加息,地产市场出现冰火两重天,进入这个看似不确定性的时代,工业制造业回流本土已经成为发达国家的一个趋势。
持续的通胀和加息短期对地产各板块影响不一,但考虑建筑成本上涨,工人工资上涨,新盖的建筑价格无疑将继续保持高位。资本的投资重点也在不同板块间流动,从2021年起,除南澳和北领地外,其它各州的零售地产信心均出现下降,但工业地产却备受青睐,随着国际局势的不确定性,全世界都加紧发展自身工业,显然,下一个十年地产投资黄金板块必然有工业地产。
按照行业专家的分析,在目前的经济情况下,各州工业地产的预期前景优于其它资产类别。预计在未来一到两年内,工业地产将超越其它资产,成为引领新州地产市场发展的一匹黑马。

我们很荣幸地为你呈现无以伦比的黑马资产,位于40-42 Pavesi St,Smithfield NSW 2164的Smithfield工业园。
这个全新的工业园位于悉尼西部主要的工业区,交通便利,设备先进,园区共33个多功能工业单元。
所有单元均为8米的挑高天花板设计并配有大跨度仓库空间,满足从仓储到制造等各种商业和工业需求。

匠心独运的设计空间
Smithfield工业园由HarvestLand开发,由对工业和物流需求有深刻认识和广泛理解的人士建造。这些单元提供多种空间选择,可以灵活调整来满足所有业务需求。
大跨度的仓库设计和建设让内部空间利用率最大化,同时保有用作他途时修改和持续优化布局的可能性。

灵活进出场地和全机动化配备
场地上车道宽敞,超高的6米宽自动卷门,为有高净空出入需求的卡车和车辆提供了绝对便捷和无障碍的通道。单向交通也提高了安全性,充足的停车位为日常运作增添了一份便捷。

可持续性的自然采光
考虑到可持续性,物业一层和夹层办公室均采用落地式大面积玻璃窗,实现全天的自然采光。每个单元的天窗和LED照明设施还可以降低运营成本。
布局优良
每个仓库都配有夹层办公空间,并设有独立卫生间,满足用户的日常需求。
多层的多功能空间
Smithfield工业园的每个单元都设有一个夹层办公空间,利用挑高天花板设计的优势打造出独立的二层空间,可用作办公、会议、行政或培训等不同用途,也可作为额外的储物空间。

交通便利
Smithfield是大西悉尼制造和分销集中的主要地点之一,Smithfield工业园是商业枢纽的中心。
当地交通网成熟、运输基础设施和周边生活设施完善,距离市中心只有25公里,这让Smithfield工业园有着其他物业无可比拟的便利优势。
位置优越
Smithfield工业园是悉尼西部一个中心据点,靠近主要交通网和公交设施,临近机场和港口,地理位置优越。
工业园的附近有成熟的生活配套设施,不仅为住户带来了便利,还增加了物业的价值和吸引力,一举多得。

物流场地的地标性设施
高速公路 - 300米
Smithfield工业园距离Cumberland高速公路仅300米,邻近主要基础设施和M4高速公路,地理位置优越。
公交线路 - 300米
简短步行即可到达Fairfield Rd公交站,通勤者可便捷搭乘802 Liverpool,820 Guildford West 和 821 Guildford Station等公交线路。
火车站 - 2.8公里
Guildford火车站近在咫尺,去往任何地方都很方便。T2内西、Leppington线以及T5 Cumberland线是最多通勤者的选择。
机场 - 11公里
Bankstown机场就在Hume高速公路的另一边,一小时车程即可到达Badgerys Creek和悉尼机场。
海港 - 35公里
靠近工业水域,直接连接Botany港,连通陆路和水路运输。

成熟的本地生活便利设施
在这里,所有日常需求设施一应俱全,无论是早上喝杯咖啡,吃顿速食午餐,还是下班回家前快速补充食物储备。附近零售商店、超市、咖啡馆和得来速餐厅等琳琅满目、选择众多,生活便捷是一种常态。

适合各种用途的完美条件
Smithfield工业园采用精简的混凝土结构,坚固且维护成本低,8米挑高的天花板,超大的卷门和宽阔的卸货区,灵活的内部空间,带护栏的楼梯和夹层办公室。为了加强安保,工业园的大门在非工作时段会上锁。
-
33个仓库单元,面积从140平方米到250平方米,均配有夹层办公室
-
8米挑高的天花板,适合仓储或工业制造
-
6米宽自动卷门,便于卡车装卸货物
-
混凝土结构,维护成本低
-
位于悉尼西部主要工业区,交通便利
-
大门在非工作时段会关闭,提供额外安全保障

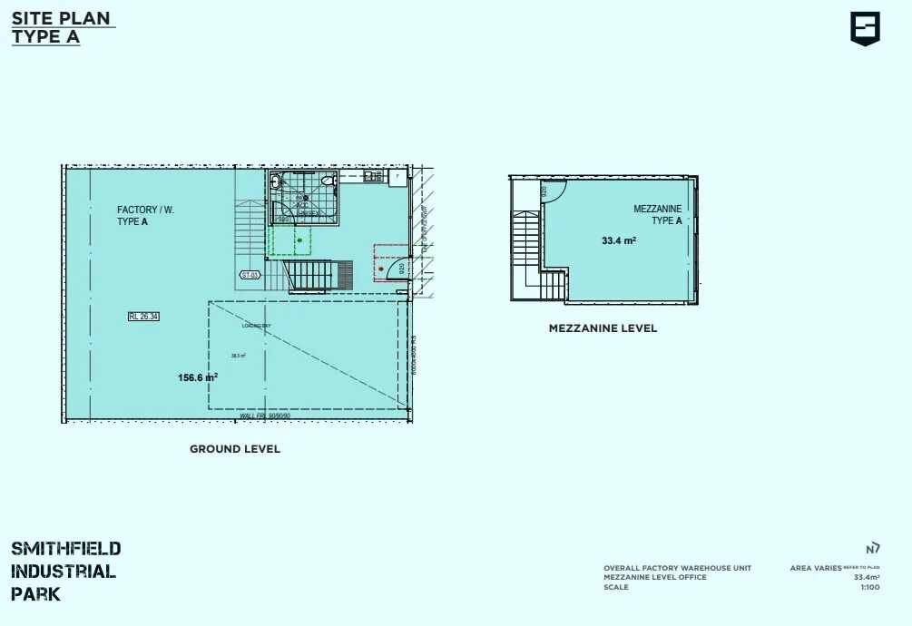
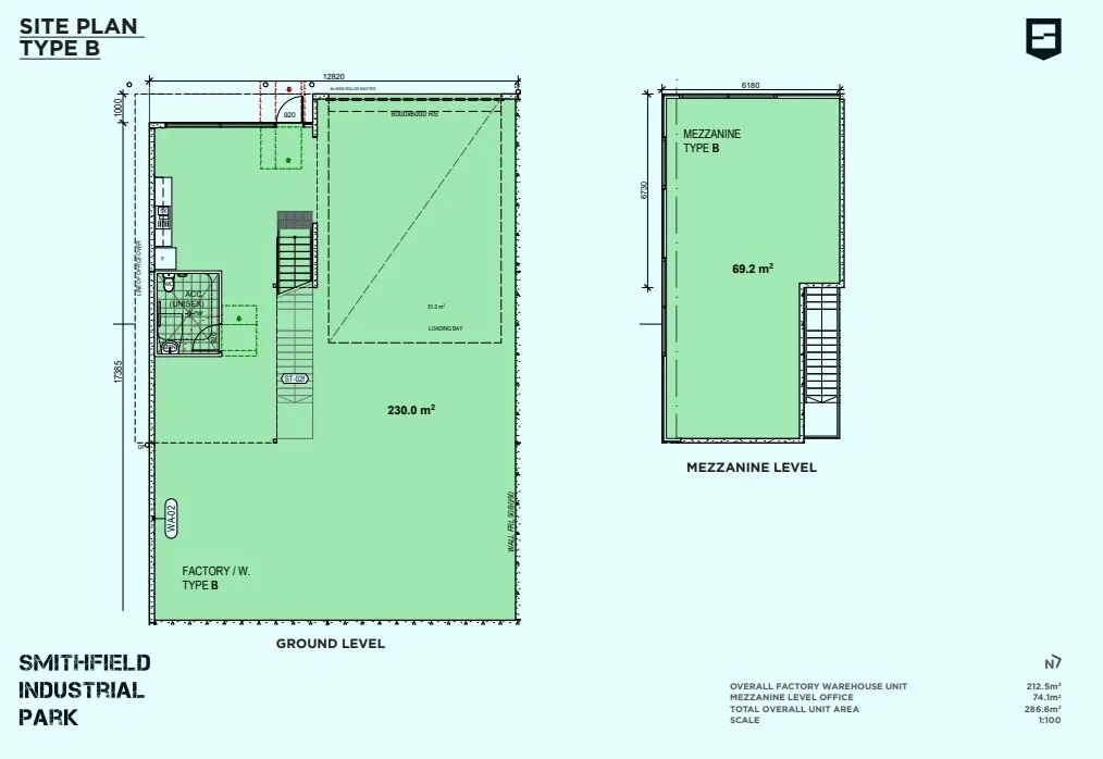
场地规划

有五种不同布局,面积从140平方米到250平方米不等,均配有夹层办公室。
这些单元是中小型企业的理想型且实用性的选择。





开发团队

HarvestLand的团队有超过15年的实操经验,致力于用最优质的工艺打造质量最高的项目。我们的住宅、商业和工业投资组合的租金收入夯实,是稳定现金流和持续开发能力的牢靠基础。我们从零开始,是客户的肯定并不吝引荐得以取得如今稳定的成绩,客户的口碑是我们多年来建造高质、优良信誉和水平专业的有力证明。





